Ingenieurbüro Holzbau – Tragwerksplanung & Fachplanungen von FH Holzbaustatik

Ingenieurbüro Holzbau – Die Firma FH Holzbaustatik ist Ihre verlässliche Partnerin mit umfassender Kompetenz in Tragwerksplanung, Werkplanung, Gutachten und Fachplanungen. Wir begleiten Bauherren, Architekten und Investoren von der ersten Idee bis zur Bauausführung – interdisziplinär, digital und immer praxisorientiert.

Tragwerksplanung Holzbau – Grundlage für sichere Bauwerke

Die Tragwerksplanung im Holzbau ist der Kern unserer Arbeit. Wir entwickeln Konzepte, die Sicherheit, Wirtschaftlichkeit und Nachhaltigkeit verbinden.

Zur Repräsentierung des Bereiches Tragwerksplanung (Statik) unseres Ingenieurbüros für Holzbau ist ein hölzernes Grundskelett eines Hauses abgebildet.

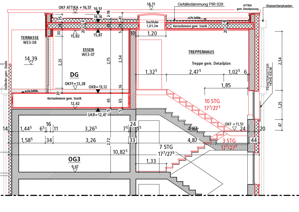
Werkplanung & BIM im Ingenieurbüro Holzbau

Mit unserer Werkplanung im Holzbau (Leistungsphasen 5 & 6 HOAI) stellen wir sicher, dass Tragwerke nicht nur berechnet, sondern detailliert für Fertigung und Montage ausgearbeitet sind.

Zur Repräsentierung des Bereiches Werkplanung unseres Ingenieurbüros für Holzbau ist eine Skizze bzw. bauzeichnerische Blaupause dargestellt.

Resttragfähigkeitsgutachten – Sicherheit im Bestand von unserem Ingenieurbüro Holzbau

Bei Umbauten, Aufstockungen oder Sanierungen liefern unsere Gutachten für den Bestand belastbare Nachweise zur Resttragfähigkeit. Damit schaffen wir Klarheit für Planer, Bauherren und Behörden.

Zur Darstellung des Bereiches Resttragfähigkeitsgutachten unseres Ingenieurbüros für Holzbau ist ein Wohnkomplex mit vier Stockwerken aus einer Plattenbausiedlung dargestellt, die sich für eine Aufstockung anbietet.

Aufstockungen & urbane Nachverdichtung

Als erfahrenes Ingenieurbüro für Aufstockungen prüfen wir die Machbarkeit, erstellen Nachweise und begleiten die Umsetzung. So entsteht zusätzlicher Wohn- oder Büroraum ohne Neubau auf der grünen Wiese.

Zur Darstellung des Bereiches Aufstockungen und urbane Nachverdichtung unseres Ingenieurbüros für Holzbau ist ein Aufstockungsprojekt dargestellt: Ein großes Bestandsgebäude mit einer zweistöckigen Aufstockung. Markant: die vielen Fenster auf dem Dach.

Schal- und Bewehrungspläne vom Ingengieurbüro Holzbau

Verschalungen sind letztlich auch Holzbauteile. Und damit kennen wir uns bestens aus.

Wir erstellen Ihnen für alle individuellen Betonbauteile Schal- und Bewehrungspläne, die eine exakte Materialplanung möglich machen. Auch und gerade wenn dies eine Teilleistung für Ihr Bauprojekt darstellt.

Zur Darstellung des Bereiches Schal- und Bewehrungspläne unseres Ingenieurbüros für Holzbau wurde ein PC-Arbeitsplatz abfotografiert, auf dem verschiedene Pläne visualisiert sind.

Fachplanung Brandschutz

Unsere Leistungen im Brandschutz reichen von Nachweisen bis zu individuellen Gutachten. Wir begleiten alle HOAI-Leistungsphasen und sichern Genehmigungsfähigkeit sowie Nutzersicherheit.

Zur Repräsentierung des Bereiches Fachplanung Brandschutz unseres Ingenieurbüros für Holzbau ist ein Feuermelder, der auf einem Grundriss liegt, abgebildet.

Fachplanung Wärmeschutz

Mit Wärmeschutznachweisen schaffen wir die Grundlage für energieeffiziente und nachhaltige Gebäude. Unsere Fachplanung deckt alle Projektgrößen ab – vom Wohnhaus bis zum Gewerbebau.

Zur Darstellung des Bereiches Fachplanung Wärmeschutz unseres Ingenieurbüros für Holzbau sieht man ein kleines und hell erleuchtetes Spielzeughaus, das schützend von den Händen eines Menschen umschlossen ist. Das symbolisiert gleichzeitig die Aspekte "Wärme" und "Schutz".

Fachplanung Schallschutz & TA Lärm

Unser Ingenieurbüro für Schallschutz erstellt prüffähige Schallschutznachweise und Gutachten nach TA Lärm – für Wohngebäude, Gewerbeimmobilien und öffentliche Bauten.

Um den Bereich Fachplanung Schallschutz unseres Ingenieurbüros für Holzbau darzustellen, zeigt dieses Bild symbolisch ein kleines Holzhausmodell, das gelbe Ohrenschützer gegen den Schall und den Lärm trägt.

Ingenieurbüro TGA

Unser Ingenieurbüro TGA plant und koordiniert die gesamte Technische Gebäudeausrüstung (TGA) – von Heizung, Lüftung und Sanitär über Elektrotechnik bis zur Gebäudeautomation.
Wir entwickeln effiziente, nachhaltige und zukunftssichere Lösungen für Wohn-, Büro- und Industriegebäude.

Übersicht Ingenieurbüro TGA - FH Holzbaustatik. Dieses Bild zeigt ein abstraktes Bild, in dem die Fachdisziplinen Elektroplanung, Sanitärplanung, Lüftungsplanung, Heizungsplanung sinnvoll kombiniert dargestellt sind.


Nachhaltiges Bauen
DGNB-Auditor

„Pro Holz“ – Nachhaltiges Bauen zahlt sich aus!

Als Mitglied des DGNB (Deutsche Gesellschaft für Nachhaltiges Bauen) planen und bauen wir zukünftig nicht nur, sondern prüfen und bewerten mit akkreditierten Mitarbeitern als DGNB-Auditoren sämtliche Bauvorhaben für nachhaltiges Bauen. Hierzu gehören Aspekte wie Energieeffizienz, Ressourcenschonung, Materialauswahl, Nutzerkomfort und Gebäudemanagement berücksichtigt werden. 

Firmenlogo des Ingenieurbüros FH Holzbaustatik.


Warum FH Holzbaustatik als Ihr Ingenieurbüro Holzbau?

    • Interdisziplinäre Expertise: Statik, Werkplanung und Fachplanungen greifen ineinander
    • Holzbau-Spezialisierung: Erfahrung in innovativen Bauweisen, kombiniert mit Kompetenz in Stahl- und Hybridbau
    • Digitale Prozesse & BIM: für transparente Abläufe und effiziente Zusammenarbeit
    • Nachvollziehbare Nachweise: prüffähige Dokumente für Bauherren, Architekten und Behörden
Zwei Kollegen unseres Ingenieurbüro für Holzbau, Tragwerksplanung und Fachplanungen, die sich über ein Projekt unterhalten.

All unsere Leistungen im Überblick:

Jetzt Prospekt downloaden

Mitgliedsurkunde der DGNB für die 

FH Holzbaustatik GmbH & Co. KG 

Kontakt FH Holzbaustatik – Ihr Ingenieurbüro Holzbau

Sie suchen ein Ingenieurbüro für Holzbau mit Kompetenz in Tragwerksplanung, Werkplanung, Gutachten und Fachplanungen? FH Holzbaustatik ist Ihr Partner für nachhaltige und sichere Bauprojekte.